祝・グッドデザイン賞12年連続受賞
音声で聞きたい方は【こちら】
きょう10月15日は、公益財団法人日本デザイン振興会が主催する、グッドデザイン賞の発表がありました!シマダグループは12年連続!グループでは累計31作品の受賞です。これもひとえにいつも関わって頂いている皆様のおかげ。ありがとうございます。
▷受賞作品について詳しくは【こちら】
(ちなみに…12年連続となると、社内でも当たり前になりがちなのですが、その裏には大変な苦悩がありまして…よろしければこちらの記事もご覧ください。)
受賞記念!ということで、2020年度にグッドデザイン賞を受賞したサービス付き高齢者住宅「ガーデンテラス仙川」の設計に携わった石黒幹浩さんのご自宅を大公開♪
石黒さんご自身に、設計のポイントや、思いを語って頂きました。

ガーデンテラス仙川
プロローグ~初めての設計~
自宅は、実は自分で初めて設計した建築なんです。
大学生の頃、父親が亡くなり、母の実家から遠くない土地に、母と私、弟、妹の4人で暮らすための家を建てることになりました。
母に元気になってもらいたい一心で自分で設計したいと思いました。
当時は大学在学中だったので協同で設計をやってもらえる設計事務所を探し歩いて見つけることができ、新たな一歩を踏み出しました。家族が集まって住まう家とは何かを問い続け、このような形になりました。
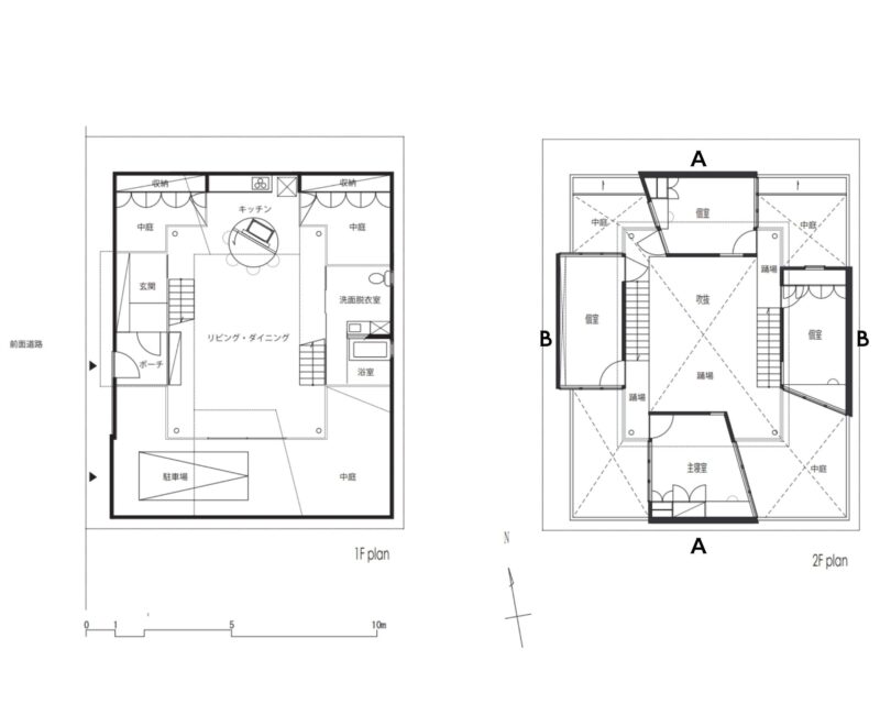
「個室が家、リビングが庭」
コンセプトは「それぞれの個室が家、リビングがインテリア化された庭」
家族が集まって住まう形を考えました。つまり、リビングはみんなの庭で、その周りに独立した「家」があるという考え方です。
まず塀で囲んで内部を庭に、その中央を間口5.5m、奥行き7.3m、高さ5.0mのガラスのボックスで囲んでLDKをつくり、周囲に約6畳の個室を配置しています。

高さ2.5mの塀で囲まれた敷地の余白に庭やガレージをつくり、ハナミズキやモミジを植栽しています。

ガレージ、奥が中庭のハナミズキ
空間が明るく軽やか 個室は浮かせるように
構造に特徴があり、鉄骨で組んだ大屋根から各個室を吊り下げ、さらに塀の一部にある柱で支えています。床はOSB(木材を使用した合板)を白く塗装したフローリング材、壁・天井は白いクロス貼り。全体が白い空間ですが、よく見ると部分的に色が違います。丸鋼(表面に突起が無い鉄筋)や梁はグレーでガラスの方立は白、色が濃い部分ほど構造的に重要になっています。

リビング北を見る

4つの個室は、プランを少しずつ変えています
私の部屋(西側)にはトップライトがあります。天井のふところに照明を仕込んであります。妹の部屋(東側)には台形のプランから生まれた三角形の出窓があります。母の部屋は南側のガレージの上。地窓から下の中庭のハナミズキが見えます。弟の部屋は北側キッチンの上で三角形のカウンターがあります。

外観 前面道路より
小窓や踊り場が個室と家族をつむぐ
敷地は、当時まだ空き地がある住宅地で周辺環境は未確定でした。一般的な2階建て住宅が多いなかで、うちの家は他とは違っています。1階は黒い塀で囲われ、上から白い大きなボックスが顔を出していて、住宅というより、ギャラリーのように見えます。入り口が見当たりませんが、黒い塀の一部に玄関扉があります。
塀の中に入ると、外からの印象とは異なる開放的な空間があります。1階はガラス張りのLDK(天井高さ5.0m、約24畳)。壁がひとつもないため、ガラスボックスに囲まれた中庭といった趣です。その上に白いボックスが4つ、空中に浮遊するようにせり出しています。このボックスが家族それぞれの個室ですが、中庭を囲んで取り付けられた4つの巣箱のようにも見えます。
南側のいちばん大きいボックスは母の部屋。吹き抜けをはさんで対面する北側のボックスには弟、西に私、東に妹。4人家族がそれぞれ自分のボックスをもち、自分で管理します。各ボックスは完全に独立していますがボックス同士は踊り場で連結されていて行き来ができるし、ボックスのLDK側の壁には開閉式の小窓があって、リビングスペースとのつながりをつくっています。小窓を開くと、部屋にいても、リビングの話し声が聞こえます。つまり、どこにいても声が聞こえ、お互いのことを感じることができます。

リビング南を見る

リビング東を見る

踊り場 個室(北側)より見る
プロセスは発見の連続
大学では設計課題をやっていて、自宅の計画もその延長としてやっていました。設計事務所に通い、アイデアを出して、模型をつくってエスキス(企画・計画)を繰り返しながら、プランをまとめていきました。
個室ボックスの平面は四角ではなく台形になっていきます。変形部分が生まれたことで妹が望んでいた出窓ができました。個室のプランを少しずつ変え、床板の色も家族でそれぞれ選びました。結果として全員が白を選びましたが、ボックスの中は各自の空間、という考え方は一貫しています。ガラス張りの大きな箱を共有しながら、小さい箱に自分の世界をもつことで、ゆるやかな家族関係をつくり出しています。

検討途中の模型写真

軸組模型
構造設計の打合せは、とくに面白かった。どうすればこの形を成立させられるかを考えていくプロセスは発見の連続でした。
軸組模型が実際に建ち上がったのを見たのは上棟(建物の骨組みを完成させる工程)をした時でした。模型でイメージしていた空間より少し小さく感じられたのを今でもよく覚えています。現場監督と構造骨組みを見ながら「まるで要塞のようですね」と話していました。

現場監督と当時大学生の私(一番右)

庭に面した中庭との連続性
玄関ホールとLDKの間はすりガラス。奥には中庭が見えます。

玄関ホール
水廻りにも壁はなく浴室やトイレも庭に面しているので開放的です。ブラインドを閉めれば視線はカットできます。

中庭より水廻りを見る

洗面脱衣室 ミラーの奥が浴室
家族を紡ぐ照明
リビングの照明計画は当初、複数の丸いペンダントライトをランダムに吊り下げる案を考えていました。家族を紡ぐようにタテ糸とヨコ糸が交錯する照明にした方が空間にストーリーが生まれると思い、この形になりました。まだLEDが普及する以前だったので、当時最も細かったφ20(直径20mm)の蛍光シームレスラインランプとパイプを巧みに組み合わせ、オリジナル照明にしました。

照明のスイッチを取り付ける壁がどこにもないので、厚さ6mmの細長い鉄板に、レバーを上下に動かす、トグルスイッチを取り付けて床に固定。床からすっと立ち上がった短冊状の金属板は、オブジェのようになっています。

対面式キッチンは半円形で、ダイニングテーブルも半円形。段差をつけた2つの半円を、向かい合わせて、円形にして使っています。

年月を重ねて
2015年改修工事
仕事の関係で、一度家を出て東京都の豊洲に住んでいましたが、2015年に実家に戻ることになり、このタイミングで改修工事をすることになりました。
外壁や塀をガルバリウム鋼板に張り替え、屋根の防水工事をしました。メンテナンスがしやすいガルバリウム鋼板は、高圧洗浄機で洗浄できます。


また、リビングは庭の延長で季節のいい時は良い反面、夏の暑さ、冬の寒さ対策が不十分でした。当時の現場監督と話し合い、既存の木下地の床を撤去して、リビング全体に温水パイプをめぐらせ、分厚いコンクリートで床を新設。昔の日本家屋にある土間です。夏はひんやり涼しく、冬は昼間の太陽光や床暖の熱をコンクリートが溜め込み、岩盤浴のようで温かいです。リビングの床暖をつけて、毛布を敷くとどこでもコタツができます。

リビング床下地撤去後

現在のリビング
熱環境を良くするために、窓に断熱ブラインドやシーリングファン、熱交換器も準備していましたが、これは後々ということに。
2019年自宅が職場化
コロナ禍の時に、リモートワークになり、自宅が職場化しました。シェアハウスのように4つの個室が独立しているのが良く、とても快適でした。週末は、庭でBBQをしようとテラスをDIYで増設。それがきっかけで防災対策も兼ねて、キャンプブーム到来。今でも公園でデイキャンプをしています。

中庭に増設したテラス

テレワーク時のデスク
テレワークをしている脇に、小さなグラスアクアリウムを置いたことがはじまりで、今ではリビングの一角にW90cm×D45cm× H45cmの大きな水槽があります。

アクアリウムは、自然から学び景観美を再現し、自然を大切にすること。日本の庭園美を追求することで美しさを極めていきます。8月に開業した軽井沢オーベルジュ・ド・プリマヴェーラの庭園づくりにも活かされています。
もともとある池につなげる小川を造成し直すことになり、浅間石の自然な配置とバランスを考えて造りました。客室テラスから聞こえる川の音をイメージしながら。

客室テラス前の小川
2020年ドローン導入
現場監督を呼んだ時には、建物のメンテナンスで屋根に上がって状態をよく確認していました。もっと気軽にチェックできるようにドローンを購入しました。屋根周りの状態を見られるので安心です。

ドローンによる空撮写真
時が経ち、弟、妹にも家族ができ、子供を連れて、実家に戻ってくるようになりました。その際は、個室を一つゲストルームにしています。ゲストルームとなる部屋のクローゼットはキャスター付きで間取りを変えることができるようにしました。ゲストルーム、シアタールーム、トレーニングルームetc.その時々に変化するフレキシブルなスペースです。

とある日はシアタールームに(白い壁にプロジェクターで投影)

別の日はトレーニングルームに
エピローグ
竣工してから20年、自宅を通して、たくさんの学びや発見があります。
ガラス張りの内部は、 部屋というより 庭の感覚で透明ガラスに隔てられた内と外には連続性が感じられます。庭に植えられたハナミズキが春に花を咲かせ、秋にはモミジが鮮やかに紅葉するなど季節の移ろいが生活の中で身近に感じられます。空の色が変化し、夕陽が赤く染まる景色、夜に満月が輝く光景など時間の流れと共に自然とつながる心豊かな暮らしがここにあります。
暮らしながら、新しい発見のある住まいになったと思います。
SAPでの建築プロジェクトと私自身の住まいづくりは、互いに影響し合っています。プロジェクトで採用した素材やアイデアを家に取り入れる一方、自宅での発見や着想は仕事に新たな視点をもたらしています。
ところで、最近になって、洗面室をリニューアルしたいという話が出てきました。さて、どうしようか、、、。

中庭のハナミズキ
DATA
主要用途 専用住宅
家族構成 母+子供3人(竣工時)
構造 鉄骨造
基礎 ベタ基礎
規模 地上2階建て
軒高 5670mm
最高高さ 5810mm
敷地面積 147.90平米
建築面積 77.60平米
延床面積 119.30平米
1階 64.00平米 2階 55.30平米
竣工 2003年2月
photo: Takeshi Taira
編集後記
この記事を担当しているEは、実家が一軒家。子供の頃、両親が建築会社と打合せをし自宅が完成していく様子を見ていました。家族みんなで新しい家で暮らし始めたときのワクワク感、高揚感は忘れられません。
でも、現在その家は築20年以上が経ち、母のみが暮らしている状況。そうなると、テラスが壊れたけど母一人じゃ直せない、大きくなった庭の木を切らなくてはいけない、子供部屋は物置になってしまった…など色々と不便が出てくることも…うーん、困った!早く対処しなくては…
一方、石黒さんのご自宅は、家族がどのように暮らしていくのが幸せかが、一番に考えられている家です。さらに家族や時代の変化にあわせて、家も家族と一緒に成長していく。
石黒さんの家の設計の移り変わりから、家族への愛情を心から感じました。
設計で愛情を表現する!なんて素晴らしい仕事で素晴らしい技術なんでしょう!
石黒さん、ご協力頂きまして本当にありがとうございました!
SAPでは、物件の紹介や働いている人を紹介するYouTubeチャンネルを運営しています。ぜひ、こちらもご覧ください♪
















